Description
Aires d'Entreprises vous propose, à la location, ces deux cellules d'activités avec bureaux d'accompagnement d'une surface totale d'environ 1500 m², divisibles et idéalement situés à proximité de l'A22.
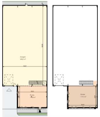
Surface
1 574 m² divisibles à partir de 787 m²
Prestations
Aménagements :
- Porte sectionnelle dans chaque cellule
- Hauteur dans l'entrepôt : 6 m
- Bureaux d'accompagnement en RDC et R+1
- 16 places de stationnement privatives en pied d'immeuble.
La livraison des cellules B2 et B3 se fait brut, avec fluides en attente.
- Surface Hors Œuvre Nette (S.H.O.N) de la celulle B2 d'environ 822,00 m².
- Surface Hors Œuvre Nette (S.H.O.N) de la celulle B3 d'environ 800,40 m².
Accessibilité

Accès via l'A22

Aéroport Lille-Lesquin à 14 min

Gare de Wasquehal à 4 km

Bus : lignes 34 et 911